Omschrijving

*** DOOR HET OVERWELDIGENDE AANTAL REACTIES IS HET HELAAS NIET MEER MOGELIJK OM EEN BEZICHTIGING IN TE PLANNEN. WANNEER JE OP DE WONING REAGEERT ZULLEN WE JE TOEVOEGEN AAN DE RESERVELIJST EN CONTACT OPNEMEN ALS ER ZICH TOCH NOG EEN MOGELIJKHEID VOORDOET. ***

Op zoek naar een instapklaar 2-KAMERAPPARTEMENT met een zonnig balkon en vrij uitzicht? Dan is dit goed onderhouden appartement, op loopafstand van het centrum van Hoofddorp, precies wat je zoekt!

Hier geniet je van het beste van twee werelden: rustig wonen met alle voorzieningen binnen handbereik. Het moderne winkelcentrum van Hoofddorp biedt volop winkels, gezellige restaurants, een bioscoop en het Cultuurgebouw. Ook vind je in de buurt diverse scholen, kinderdagverblijven, sportfaciliteiten en het groene Haarlemmermeerse Bos, ideaal voor een wandeling of een fietstocht. Dankzij de nabijgelegen buslijnen (161 en 340) en de goede verbinding naar de snelwegen ben je bovendien zo in de grote steden.

INDELING:
BEGANE GROND:
Centrale entree, brievenbussen, trappenhuis, lift en toegang tot de privé-bergingen.

EERSTE VERDIEPING:
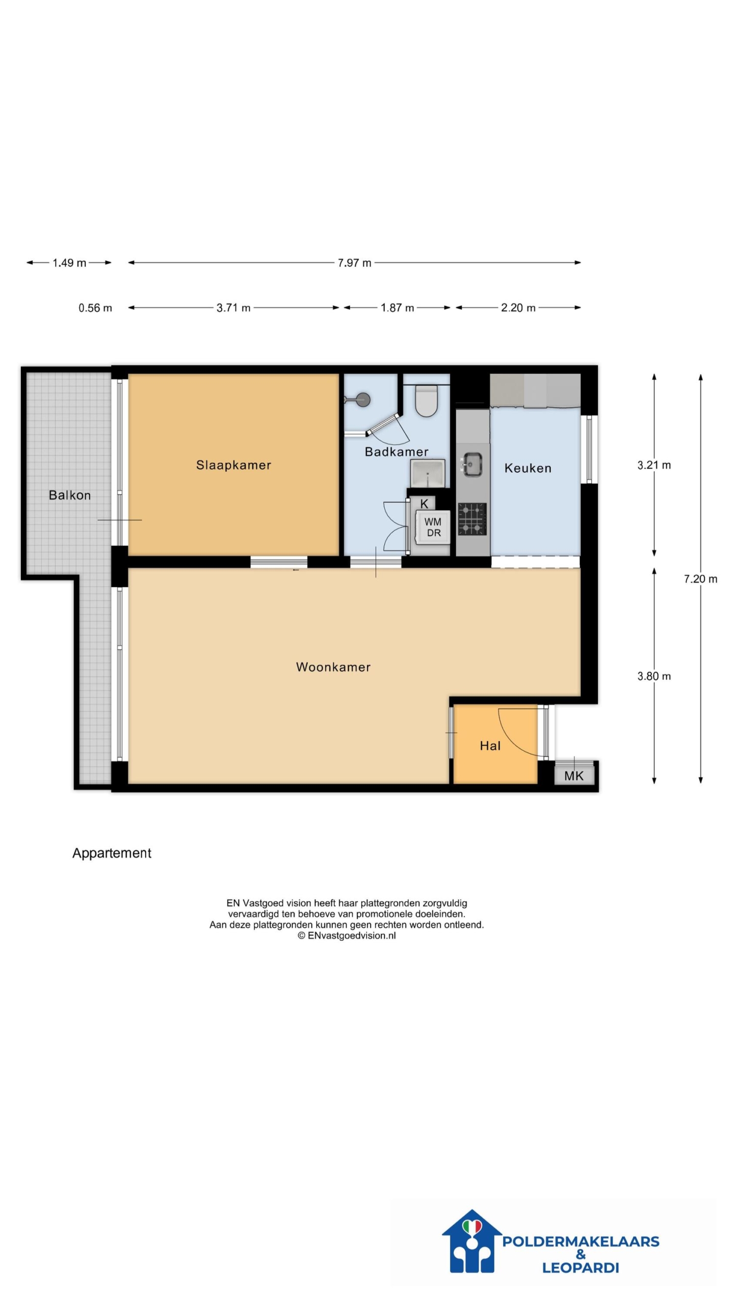
De meterkast bevindt zich naast de voordeur in het portiek. Binnenkomst in de ruime hal met garderobe. Vanuit hier stap je de lichte woonkamer in, met grote raampartijen, pvc vloer en stijlvolle Duette Shades die niet alleen sfeer maar ook isolatie bieden. De halfopen keuken in lichte kleurstelling is modern en praktisch ingericht, met onder andere een kookplaat, afzuigkap, combi-oven (2025), vaatwasser (2024), koel-/vriescombinatie en volop kastruimte. De ruime slaapkamer beschikt over een royale kastenwand en biedt toegang tot het heerlijke balkon op het noordwesten. Hier kun je na een lange dag ontspannen in de middag- en avondzon terwijl je geniet van het vrije uitzicht. In de badkamer nodigt de douche met zitje uit tot een ontspannen moment, terwijl het stijlvolle wastafelmeubel met spiegelkast een verzorgde uitstraling geeft. Tevens tref je hier het toilet en in de praktische vaste kast vind je, slim weggewerkt, ruimte voor wasmachine, droger en de eigen boiler.

BIJZONDERHEDEN:
– Bouwjaar 1972.
– Woonoppervlakte 57 m².
– Zonnig balkon met vrij uitzicht.
– Nabij centrum, OV, sport en natuur.
– Energielabel C.
– Riante privé-berging.
– Servicekosten circa € 169,- per maand.
– Voorschot stookkosten circa € 81,- per maand.
– Ouderdoms- en asbestclausule van toepassing.
– Oplevering in overleg.

Lees verder Lees minder

Specifications

Transfer
  • Status Verkocht
  • Vraagprijs € 300.000, - k.k.
  • Type of house Appartement
  • Livings space 57 m2
  • Total number of rooms 2
  • Number of bedrooms 1
  • Number of bathrooms 1
  • Bathroom facilities Toilet, douche, wastafel, wastafelmeubel, wasmachineaansluiting
  • Volume 185 m3
  • Surface area of building-related outdoor space 7 m2
  • Plot 4.551 m2
  • Construction type Bestaande bouw
  • Roof type Plat dak
  • Floors 1
  • Appartment type Portiekflat
  • Appartment level 2
  • Apartment floor number 1
  • Property type Volle eigendom
  • Current destination Woonruimte
  • Current use Woonruimte
Additional
  • Construction year 1972
  • Energy label C
  • Situation In woonwijk, vrij uitzicht
  • Quality home Goed
  • Offered since 2025-11-06
  • Acceptance In overleg
  • Garden type Geen tuin
  • Shed / storage type Box
  • Surface storage space 5 m2
  • Insulation type Dubbel glas
  • Heating types Blokverwarming
  • Warm water type Elektrische boiler eigendom
  • Facilities Tv kabel, lift, glasvezel kabel
  • Garage type Geen garage
  • Parking facilities Openbaar parkeren
  • VVE periodic contribution Yes
Lees verder Lees minder
Hypotheekgesprek nodig?

Weten wat uw woning ongeveer waard is?
Doe nu vrijblijvend een woningcheck.

Plan uw afspraak
De brochure

Wilt u alle informatie over deze woning nog eens rustig nalezen?

Download brochure

Plattegronden

Media

Afspraak plannen

"*" indicates required fields

Consent*
Consent*

Gratis waardebepaling

"*" indicates required fields

Consent*
Consent*