Omschrijving

Wonen in het centrum van Hoofddorp met alle denkbare voorzieningen op loopafstand, dat kan in dit ruime 3 KAMER APPARTEMENT, gelegen op de 1e verdieping.

Rustig wonen op loopafstand van het centrum met alle denkbare winkels, supermarkten, restaurants, de schouwburg en de bioscoop. Verschillende kinderopvangcentra en basis- alsmede middelbare scholen zijn in de omgeving gesitueerd. De uitvalswegen naar de grote steden en Schiphol zijn snel aan te rijden, het treinstation en diverse busverbindingen zijn nabij gelegen.

INDELING:
BEGANE GROND:
Centrale entree, brievenbussen, bellentableau, trap, lift, algemene (fietsen)berging en trapafgang naar privé-bergingen.

EERSTE VERDIEPING:
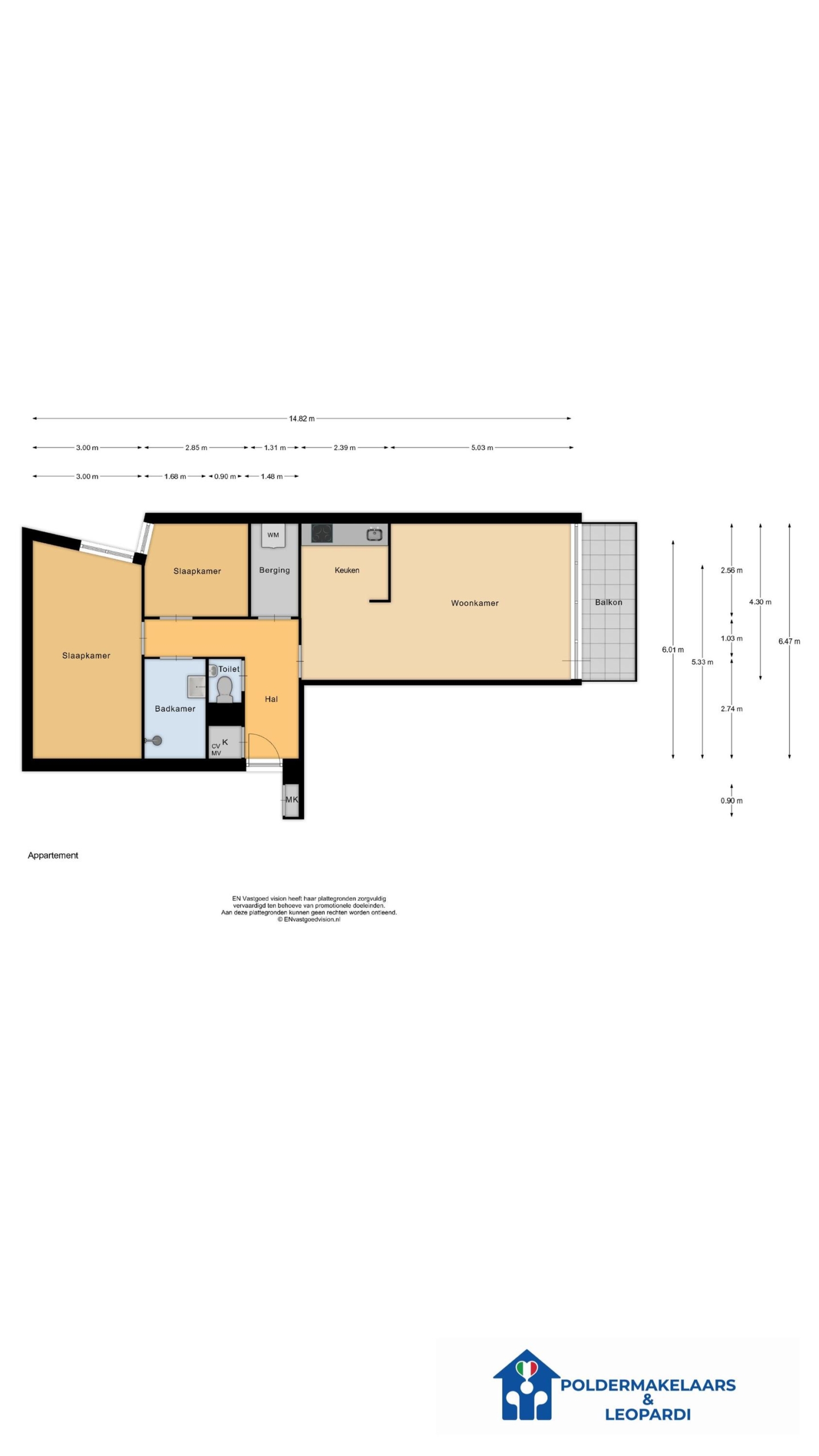
Entree, hal, toilet met fonteintje, wasruimte annex bijkeuken en de bergkast met de CV-ketel (Intergas HR, bouwjaar circa 2018) en mechanische ventilatie. De woonkamer heeft vrij uitzicht en geeft toegang tot het zonnige balkon op het noordwesten gelegen. De ruime half-open keuken beschikt over een standaard keukenblok met wat extra kasten, mogelijkheden en ruimte genoeg om van deze keuken wat moois van te maken. Er is een riante ouderslaapkamer en ruime 2e slaapkamer. De badkamer is voorzien van een douche en wastafel.

KELDER:
Hier is de privé-berging behorend bij dit appartement gelegen.

BIJZONDERHEDEN:
– Woonoppervlakte 77 m².
– Energielabel B.
– Voorschot servicekosten circa € 258,95 per maand.
– In het centrum, ruim en groen gelegen.
– Niet-bewoningsclausule van toepassing.
– Projectnotaris.
– Oplevering in overleg.

Lees verder Lees minder

Specifications

Transfer
  • Status Beschikbaar
  • Vraagprijs € 379.000, - k.k.
  • Type of house Appartement
  • Livings space 77 m2
  • Total number of rooms 3
  • Number of bedrooms 2
  • Volume 240 m3
  • Surface area of building-related outdoor space 7 m2
  • Plot 16.118 m2
  • Construction type Bestaande bouw
  • Roof type Plat dak
  • Floors 1
  • Appartment type Portiekflat
  • Appartment level 2
  • Apartment floor number 1
  • Property type Volle eigendom, volle eigendom
  • Current destination Woonruimte
  • Current use Woonruimte
  • Special features Toegankelijk voor ouderen, toegankelijk voor minder validen
Additional
  • Construction year 2001
  • Energy label B
  • Situation In centrum, in woonwijk
  • Quality home Goed
  • Offered since 2025-11-07
  • Acceptance In overleg
  • Garden type Geen tuin
  • Shed / storage type Box
  • Surface storage space 3 m2
  • Insulation type Volledig geisoleerd
  • Central heating boiler Yes
  • Boiler construction year 2018
  • Boiler fuel type Gas
  • Boiler property Eigendom
  • Heating types Cv ketel
  • Warm water type Cv ketel
  • Facilities Mechanische ventilatie, tv kabel, lift
  • Garage type Geen garage
  • Parking facilities Betaald parkeren, parkeervergunningen
  • VVE periodic contribution Yes
Lees verder Lees minder
Hypotheekgesprek nodig?

Weten wat uw woning ongeveer waard is?
Doe nu vrijblijvend een woningcheck.

Plan uw afspraak
De brochure

Wilt u alle informatie over deze woning nog eens rustig nalezen?

Download brochure

Plattegronden

Media

Afspraak plannen

"*" indicates required fields

Consent*
Consent*

Gratis waardebepaling

"*" indicates required fields

Consent*
Consent*