Omschrijving

Charmante VRIJSTAANDE WONING uit de jaren ’30, met VIER slaapkamers (mogelijkheid tot zes) en compleet gastenverblijf in de achtertuin.

Deze voormalige twee-onder-een-kapwoning, met nog diverse glas in lood accenten, is gefuseerd tot één ruime vrijstaande woning. En heeft in de achtertuin nog een eigen zelfstandig gelegen bijgebouw.

Het centrum van Hoofddorp biedt het winkelcentrum de Vier Meren, de weekmarkt op vrijdag en een uitgebreid aanbod aan winkels, restaurants en horecagelegenheden. Daarnaast beschikt het centrum van Hoofddorp over een bioscoop en een cultureel gebouw met schouwburg.

Op enkele minuten loopafstand ben je bij het busstation aan het Burgermeester van Stamplein, of zelf op Hoofddorp Station zelf. Vanuit hier heb je met het openbaar vervoer goede verbindingen richting Haarlem, Schiphol, Amstelveen, Amsterdam, maar ook in de richting van Den Haag en Leiden. Dit geldt tevens voor de bereikbaarheid met de auto, binnen een paar minuten zit je op de snelweg A4 richting Amsterdam of Den Haag.

INDELING:
BEGANE GROND:
Entree, hal, toiletruimte, een voorkamer met kamer-en-suite deuren, en aan de ander zijde toegang tot de woonkamer. De woonkamer is gelegen aan de achterzijde over de gehele breedte. Hier is goed te merken wat het samenvoegen van de twee woningen voor een ruimte heeft opgeleverd. Naast de zithoek en de eethoek is er aan de andere zijde van de woning de trapopgang naar boven en nog aansluitend een tweede voorkamer (nu als slaapkamer in gebruik).

De aangebouwde woonkeuken in landelijke style is voorzien van een koelkast, vriezer, vaatwasser, brede spoelbak met kraan, oven, magnetron, 4-pits gaskookplaat met afzuigkap, wasmachine en drogeraansluiting en nog een dubbele spoelbak. In de bijkeuken is de meterkast, opstelplaats van de CV-ketel (Remeha, bouwjaar circa 2006) en een badkamer met douche, toilet en een wastafel.

EERSTE VERDIEPING:
Overloop, aan de achterzijde zijn twee slaapkamers gelegen. Aan de voorzijde van de woning is een derde slaapkamer en badkamer gelegen. De ruime badkamer is voorzien van een ligbad, douche, toilet, wastafelmeubel en diverse kastruimte.

TWEEDE VERDIEPING:
Hier bevindt zich aan de voorzijde van de woning een slaapkamer en de achterzijde van de woning een zeer ruime open ruimte waar eventueel nog een (6e) slaapkamer gecreëerd kan worden. En achter de knieschotten is er veel opbergruimte.

TUIN:
De diepe en brede tuin is op het noordoosten gelegen, via beide zijden vanaf de voorkant van de woning is de tuin toegankelijk. Op dit moment staat er een grote chalet én een extra zelfstandig bijgebouw in de achtertuin.

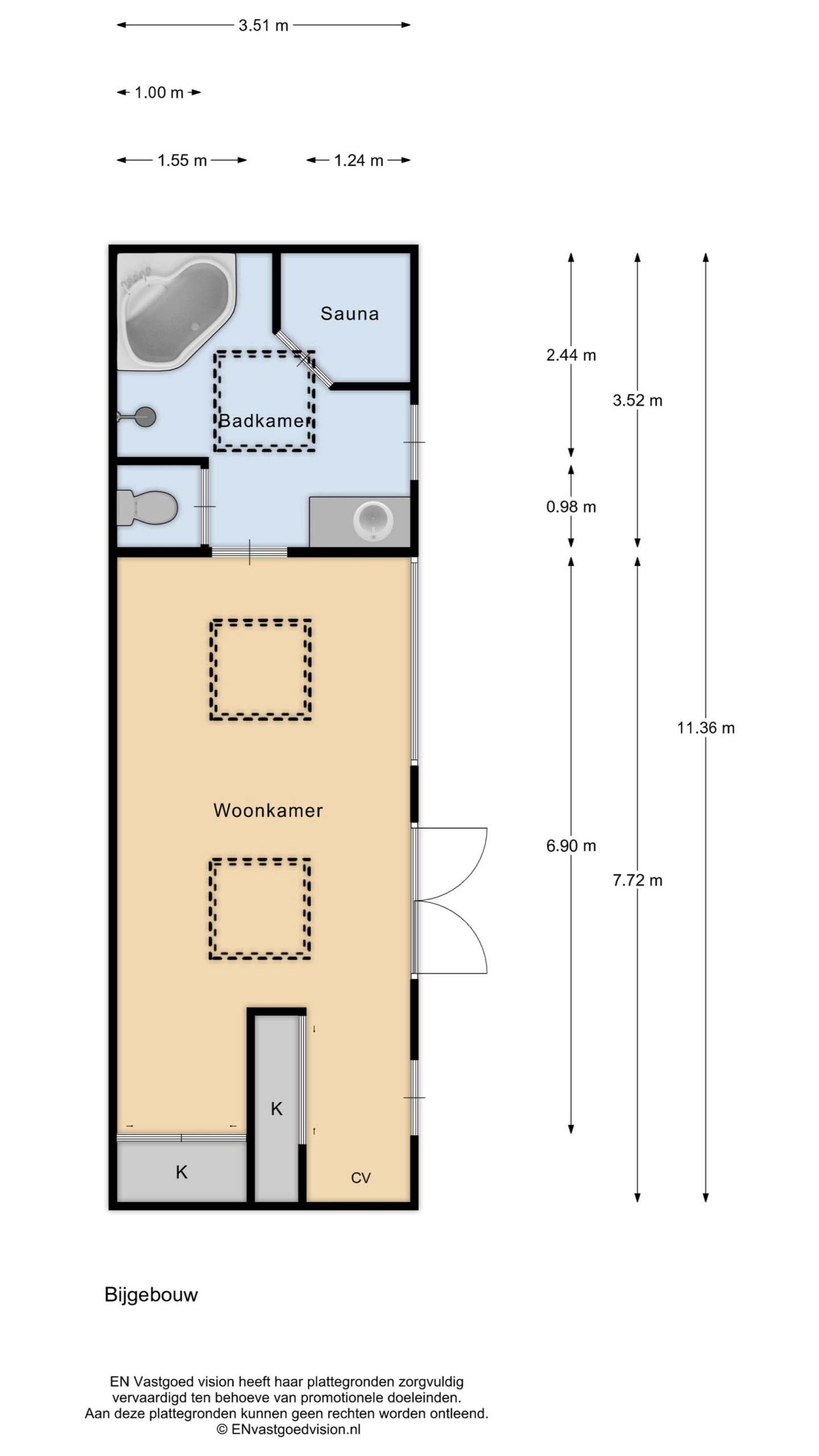
BIJGEBOUW:
Het zelfstandig gelegen bijgebouw is voorzien van een entree, met direct daarnaast gelegen de opstelplaats van een CV-ketel (Intergas, bouwjaar circa 2009), een ruime kamer met openslaande deuren richting de tuin, en de badkamer met daklicht heeft een hoekligbad, sauna, toilet en een klein basic keukenblok.

BIJZONDERHEDEN
– Bouwjaar 1934.
– Woonoppervlakte 217 m².
– Voormalige twee-onder-een-kapwoning.
– Energielabel F.
– Woning dient gemoderniseerd.
– Nabij/tegen Hoofddorp Centrum gelegen.
– Niet-zelfbewoningsclausule van toepassing.
– Ouderdomsclausule van toepassing.
– Asbestclausule van toepassing.
– Projectnotaris: Novitarius.
– Oplevering in overleg.

Lees verder Lees minder

Specifications

Transfer
  • Status Onder bod
  • Vraagprijs € 795.000, - k.k.
  • Type of house Woonhuis
  • Livings space 217 m2
  • Total number of rooms 7
  • Number of bedrooms 6
  • Number of bathrooms 2
  • Bathroom facilities Toilet, douche, wastafel, ligbad, toilet, douche, wastafelmeubel
  • Volume 775 m3
  • Plot area 515 m2
  • Plot 9.943 m2
  • Construction type Bestaande bouw
  • Roof type Zadeldak
  • Floors 3
  • Property type Volle eigendom, volle eigendom
  • Current destination Woonruimte
  • Current use Woonruimte
Additional
  • Construction year 1934
  • Energy label F
  • Situation In centrum, in woonwijk
  • Quality home Goed
  • Offered since 2025-09-25
  • Acceptance In overleg
  • Main garden location Noordoost
  • Main garden area 180 m2
  • Main garden type Achtertuin
  • Garden plot area 350 m2
  • Garden type Achtertuin, voortuin, zijtuin
  • Qualtiy garden Normaal
  • Shed / storage type Vrijstaand hout
  • Surface storage space 33 m2
  • Insulation type Gedeeltelijk dubbel glas
  • Central heating boiler Yes
  • Boiler construction year 2006
  • Boiler fuel type Gas
  • Boiler property Eigendom
  • Heating types Cv ketel
  • Warm water type Cv ketel
  • Facilities Tv kabel, glasvezel kabel
  • Garage type Geen garage
  • Parking facilities Betaald parkeren, parkeervergunningen
Lees verder Lees minder
Hypotheekgesprek nodig?

Weten wat uw woning ongeveer waard is?
Doe nu vrijblijvend een woningcheck.

Plan uw afspraak
De brochure

Wilt u alle informatie over deze woning nog eens rustig nalezen?

Download brochure

Plattegronden

Media

Afspraak plannen

"*" indicates required fields

Consent*
Consent*

Gratis waardebepaling

"*" indicates required fields

Consent*
Consent*