Omschrijving

Ruime 2-ONDER-1 KAPWONING met GARAGE, oprit én riante zonnige tuin op het noordwesten. Deze gezinswoning combineert comfort, ruimte en een ideale ligging! Met de mogelijkheid tot maar liefst vijf royale slaapkamers, een verzorgde diepe achtertuin op de middag- en avondzon én parkeren op eigen terrein, is dit het perfecte huis voor wie net dat beetje extra zoekt.

Gelegen in een kindvriendelijke en centrale wijk, op steenworp afstand van het centrum van Hoofddorp met winkels, horeca, bioscoop en het Cultuurgebouw. Ook scholen, kinderopvang, sportfaciliteiten en het Haarlemmermeerse Bos liggen in de directe omgeving. Busverbinding (lijn 340) op loopafstand en uitstekende uitvalswegen richting Amsterdam, Haarlem en Schiphol.

INDELING:
BEGANE GROND:
Ruime entree, hal met garderobe, de meterkast (slimme meters en glasvezel) en modern toilet met fonteintje. De royale woonkamer met sfeervolle gashaard en fraaie parketvloer, biedt volop lichtinval en een vrij uitzicht op de fraai aangelegde achtertuin. De moderne keuken (2021), welke aan de voorzijde is gelegen, is voorzien van een 4 pits gasfornuis, afzuigkap, oven, vaatwasser en een losstaande koelkast. De dubbel openslaande deuren in de woonkamer geven toegang tot de riant en fraai verzorgde achtertuin gelegen op de middag- en avondzon. Via dubbele openslaande deuren loop je zo de tuin in, compleet met vijver, kas, houten berging met elektra en achterom. De geïsoleerde garage is voorzien verwarming, spoelbak en elektra, ideaal als hobbyruimte, werkplek of extra bergruimte.

EERSTE VERDIEPING:
Overloop met toegang tot twee zeer ruime slaapkamers (waarvan één eenvoudig terug te splitsen is in twee kamers). Eén slaapkamer beschikt over een speels Frans balkon, de andere over praktische rolluiken. De complete badkamer, in lichte kleurstelling, is voorzien van ligbad, douche, toilet en wastafel.

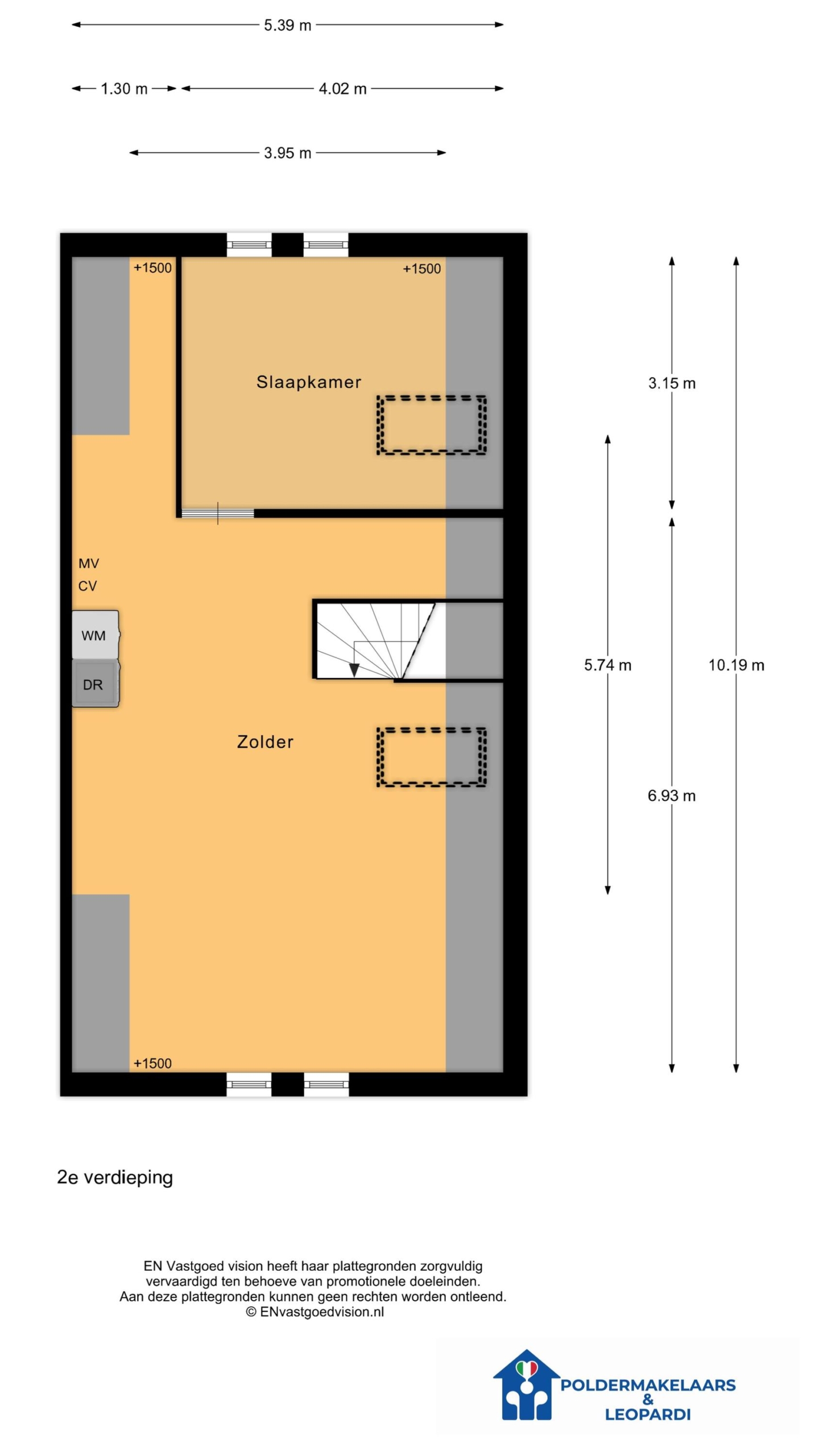
TWEEDE VERDIEPING:
Ruime lichte zolderverdieping met dakramen. Hier is naast de bestaande slaapkamer eenvoudig een extra 5e slaapkamer te realiseren. Op deze verdieping tref je de opstelling van de wasmachine en droger, alsmede de CV-combiketel (Intergas HR, bouwjaar circa 2022).

BIJZONDERHEDEN:
– Bouwjaar 2005.
– Woonoppervlakte 171 m².
– Perceelgrootte 305 m².
– 5 slaapkamers mogelijk.
– Garage én parkeren op eigen terrein.
– Energielabel A.
– Riante, verzorgde en zonnige tuin gelegen op het noordwesten.
– Buitenschilderwerk 2023.
– Oplevering in overleg.

Lees verder Lees minder

Specifications

Transfer
  • Status Verkocht onder voorbehoud
  • Vraagprijs € 845.000, - k.k.
  • Type of house Woonhuis
  • Livings space 171 m2
  • Total number of rooms 6
  • Number of bedrooms 5
  • Number of bathrooms 1
  • Bathroom facilities Ligbad, toilet, douche, wastafel
  • Volume 763 m3
  • Surface area of building-related outdoor space 5 m2
  • Plot area 305 m2
  • Plot 5.756 m2
  • Construction type Bestaande bouw
  • Roof type Zadeldak
  • Floors 3
  • Property type Volle eigendom
  • Current destination Woonruimte
  • Current use Woonruimte
Additional
  • Construction year 2005
  • Energy label A
  • Situation In woonwijk, vrij uitzicht, open ligging
  • Quality home Goed tot uitstekend
  • Offered since 2025-11-04
  • Acceptance In overleg
  • Main garden location Noordwest
  • Main garden area 153 m2
  • Main garden type Achtertuin
  • Garden plot area 200 m2
  • Garden type Achtertuin, voortuin
  • Qualtiy garden Fraai aangelegd
  • Shed / storage type Vrijstaand hout
  • Surface storage space 10 m2
  • Insulation type Volledig geisoleerd
  • Central heating boiler Yes
  • Boiler construction year 2022
  • Boiler fuel type Gas
  • Boiler property Eigendom
  • Heating types Cv ketel, gashaard
  • Warm water type Cv ketel
  • Facilities Mechanische ventilatie, rolluiken, tv kabel, frans balkon, dakraam, glasvezel kabel
  • Garage type Aangebouwd steen
  • Parking facilities Openbaar parkeren, op eigen terrein
Lees verder Lees minder
Hypotheekgesprek nodig?

Weten wat uw woning ongeveer waard is?
Doe nu vrijblijvend een woningcheck.

Plan uw afspraak
De brochure

Wilt u alle informatie over deze woning nog eens rustig nalezen?

Download brochure

Plattegronden

Media

Afspraak plannen

"*" indicates required fields

Consent*
Consent*

Gratis waardebepaling

"*" indicates required fields

Consent*
Consent*