Omschrijving

Wonen in het centrum van Hoofddorp met alle denkbare voorzieningen op loopafstand, dat kan in dit royale 5-KAMER HOEKAPPARTEMENT met EIGEN PARKEERPLAATS in de parkeerkelder.
Een heerlijk vrij uitzicht over groen vanaf het hoekbalkon, 3 ruime slaapkamers, half-open keuken en 2 badkamers.

Rustig wonen op loopafstand van het centrum met alle denkbare winkels, supermarkten, restaurants, de schouwburg en de bioscoop. Verschillende kinderopvangcentra en basis- alsmede middelbare scholen zijn in de omgeving gesitueerd. De uitvalswegen naar de grote steden en Schiphol zijn snel aan te rijden, het treinstation en diverse busverbindingen zijn nabij gelegen.

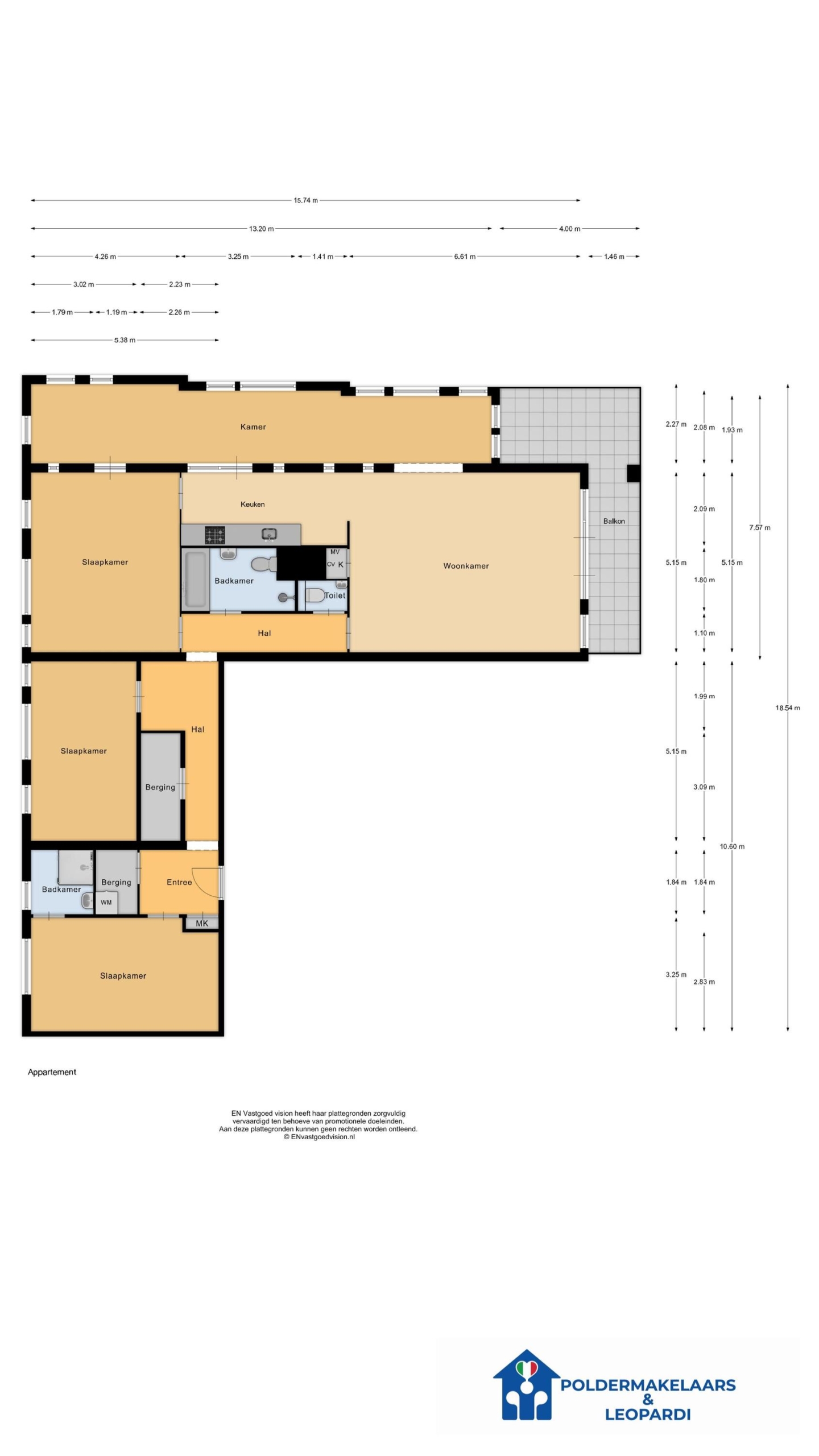
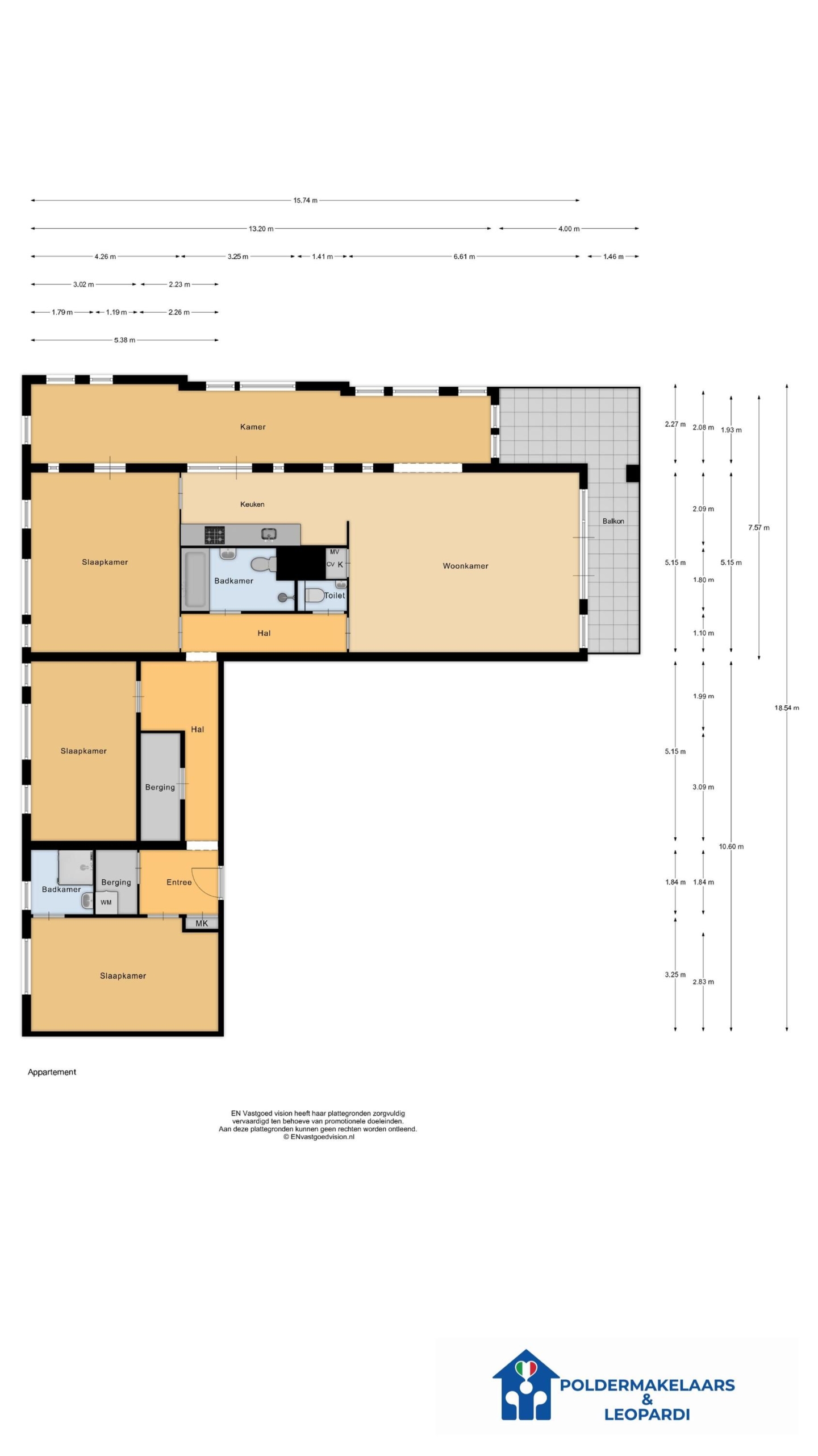
INDELING:

BEGANE GROND:
Centrale entree, brievenbussen, trappenhuis en lift.

3E VERDIEPING:
Bij binnenkomst via de entree stap je de ruime hal binnen, waar zich ook de meterkast met glasvezel en slimme meters bevindt. De ruime woonkamer kenmerkt zich door een prachtige zijflank met veel ramen en fijn lichtinval. Via de woonkamer kom je op het hoekbalkon, met uitzicht op groen. De basic half open keuken beschikt over een 4-pits gasfornuis, afzuigkap en combi-oven. In de stookkast zijn de CV-ketel (Intergas Hr, bouwjaar circa 2022) en mechanische ventilatie geïnstalleerd. De riante ouderslaapkamer beschikt over een badkamer en-suite voorzien van een douche en wastafel. Naast de ouderslaapkamer zijn er nog 2 andere ruime slaapkamers. De tweede badkamer beschikt over een ligbad, douche, toilet en wastafel. In de hal tref je tevens een separaat toilet met fonteintje, aparte wasruimte met de aansluitingen van de wasmachine en droger. En ook nog eens een separate bergruimte.

KELDER :
Hier bevindt zich de privéparkeerplaats alsmede de privé-berging.

BIJZONDERHEDEN:
– Bouwjaar 2003.
– Woonoppervlakte 170 m².
– Energielabel A.
– Voorschot servicekosten circa € 418,97 per maand, inclusief box en parkeerplaats.
– In het centrum.
– Niet-bewoningsclausule van toepassing.
– Projectnotaris.
– Mogelijkheid aanwezig voor 1 of 2 extra eigen parkeerplaatsen.
– Oplevering in overleg.

Lees verder Lees minder

Specifications

Transfer
  • Status Verkocht
  • Vraagprijs € 625.000, - k.k.
  • Type of house Appartement
  • Livings space 170 m2
  • Total number of rooms 4
  • Number of bedrooms 3
  • Number of bathrooms 2
  • Bathroom facilities Douche, wastafel, ligbad, toilet, douche, wastafel
  • Volume 519 m3
  • Surface area of building-related outdoor space 16 m2
  • Plot 8.071 m2
  • Construction type Bestaande bouw
  • Roof type Plat dak
  • Floors 1
  • Appartment type Portiekflat
  • Appartment level 4
  • Apartment floor number 1
  • Property type Volle eigendom, volle eigendom, volle eigendom, volle eigendom, volle eigendom
  • Current destination Woonruimte
  • Current use Woonruimte
  • Special features Toegankelijk voor ouderen, toegankelijk voor minder validen
Additional
  • Construction year 2003
  • Energy label A
  • Situation In centrum, in woonwijk, vrij uitzicht
  • Quality home Goed
  • Offered since 2026-02-11
  • Acceptance In overleg
  • Garden type Geen tuin
  • Shed / storage type Box
  • Surface storage space 18 m2
  • Insulation type Volledig geisoleerd
  • Central heating boiler Yes
  • Boiler construction year 2022
  • Boiler fuel type Gas
  • Boiler property Eigendom
  • Heating types Cv ketel
  • Warm water type Cv ketel
  • Facilities Mechanische ventilatie, tv kabel, lift, glasvezel kabel
  • Garage type Parkeerkelder
  • Parking facilities Betaald parkeren, parkeergarage, parkeervergunningen
  • VVE periodic contribution Yes
Lees verder Lees minder
Hypotheekgesprek nodig?

Weten wat uw woning ongeveer waard is?
Doe nu vrijblijvend een woningcheck.

Plan uw afspraak
De brochure

Wilt u alle informatie over deze woning nog eens rustig nalezen?

Download brochure

Plattegronden

Media

Afspraak plannen

"*" indicates required fields

Consent*
Consent*

Gratis waardebepaling

"*" indicates required fields

Consent*
Consent*