Omschrijving

Heerlijk vrij en groen uitzicht heeft dit 3/4-KAMERAPPARTEMENT jou te bieden vanaf het op het zuiden gelegen balkon. 2 ruime slaapkamers, met de mogelijkheid tot het eenvoudig (terug te) realiseren van een 3e slaapkamer.

Gezellige wonen bij winkelcentrum de Lange Voort en ook winkelgebied De Kempenaer is nabij gelegen. In vijf minuten fietsen ben je bij Leiden Centraal en de oprit van de A44 naar Amsterdam/Den Haag bevindt zich bijna om de hoek. Rondom het huis zijn een aantal bushaltes. Er is een keur aan basis- en middelbare scholen op loop- en fietsafstand. Een lekker ommetje of een rondje hardlopen, kun je doen in de naastgelegen Leidse Hout.

INDELING:
BEGANE GROND:
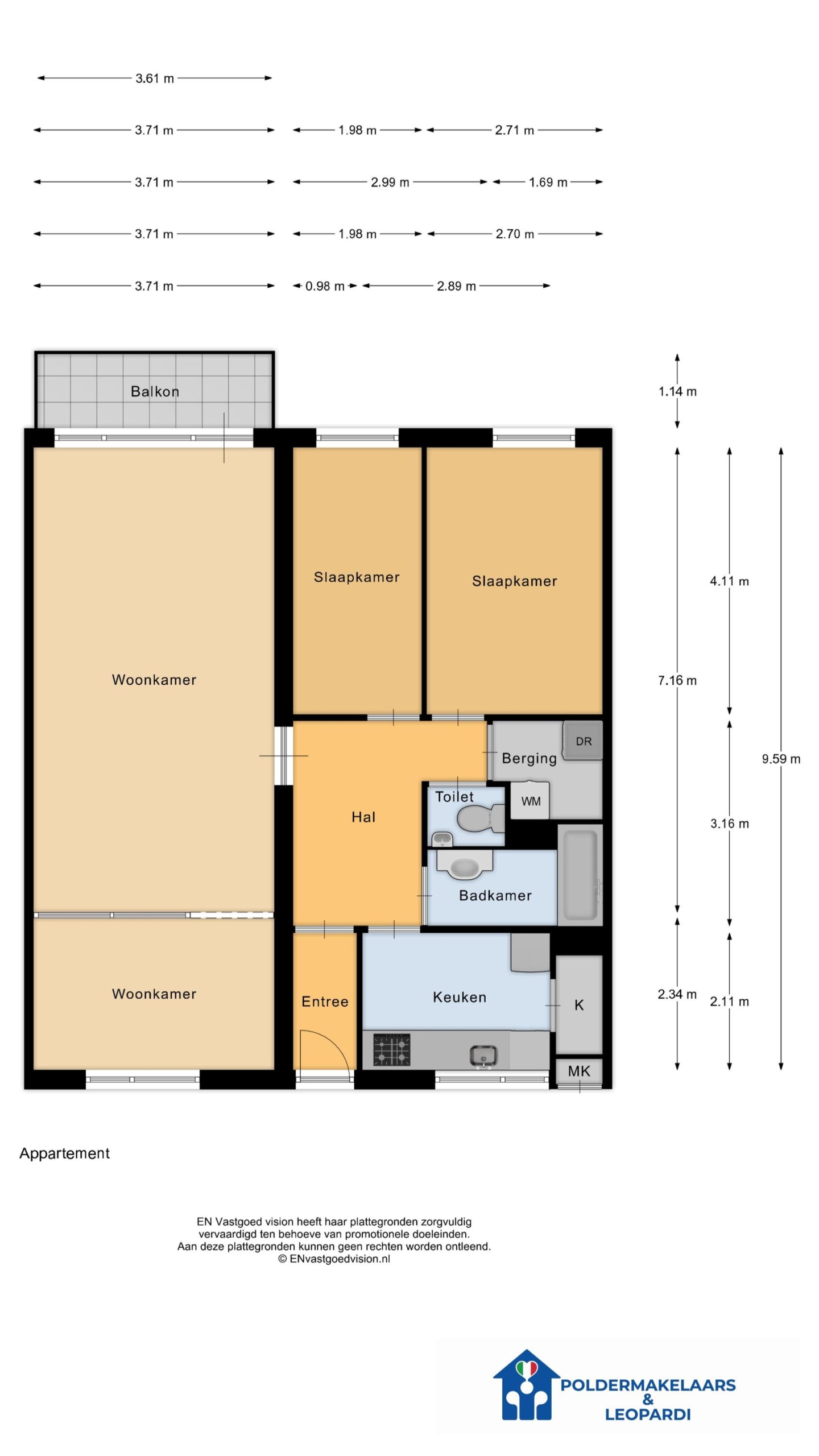
Centrale entree, bellentableau, brievenbussen, lift, trappenhuis en bergingen.

VIJFDE VERDIEPING:
Entree, hal met meterkast. De woonkamer is heerlijk licht met de grote ramen op het zuiden. De woonkamer geeft je toegang tot het op het zuiden gelegen balkon, waarbij je vrij uitkijkt. De dichte keuken kijkt uit over de omgeving en de binnentuin. Hier tref je een gasfornuis, afzuigkap en een provisiekast met de opstelplaats van de elektrische boiler (eigendom). De 2 ruime slaapkamers beschikken over een laminaat vloer en kunststof kozijnen. Aan de galerijzijde, in de woonkamer, kan je eenvoudig de 3e slaapkamer realiseren, momenteel is die ruimte in gebruik als werk-/hobbyruimte. De badkamer is voorzien van een ligbad, wastafel in meubel en kolomkast. Separaat tref je het toilet met fonteintje. De wasruimte is voorzien van de wasmachine- en drogeraansluitingen en biedt diverse bergruimte.

BIJZONDERHEDEN:
– Woonoppervlakte 84 m².
– Balkon op het zuiden met vrij uitzicht.
– Energielabel C.
– De standleidingen zijn vernieuwd in 2025.
– Onlangs zijn de centrale CV-ketels voor de blokverwarming vernieuwd.
– VvE-bijdrage circa € 287,99 per maand + € 55,- voorschot stookkosten.
– Asbest- en ouderdomsclausule van toepassing.
– Oplevering in overleg.

Lees verder Lees minder

Specifications

Transfer
  • Status Verkocht onder voorbehoud
  • Vraagprijs € 339.000, - k.k.
  • Type of house Appartement
  • Livings space 84 m2
  • Total number of rooms 4
  • Number of bedrooms 2
  • Number of bathrooms 1
  • Bathroom facilities Ligbad, wastafel, wastafelmeubel
  • Volume 267 m3
  • Plot 6.522 m2
  • Construction type Bestaande bouw
  • Roof type Plat dak
  • Floors 1
  • Appartment type Galerijflat
  • Appartment level 5
  • Apartment floor number 1
  • Property type Volle eigendom
  • Current destination Woonruimte
  • Current use Woonruimte
Additional
  • Construction year 1965
  • Energy label C
  • Situation In centrum, in woonwijk, vrij uitzicht
  • Quality home Goed
  • Offered since 2025-09-30
  • Acceptance In overleg
  • Garden type Geen tuin
  • Surface storage space 4 m2
  • Insulation type Dubbel glas
  • Heating types Blokverwarming
  • Warm water type Elektrische boiler eigendom
  • Facilities Tv kabel, lift
  • Garage type Geen garage
  • Parking facilities Openbaar parkeren
  • VVE periodic contribution Yes
Lees verder Lees minder
Hypotheekgesprek nodig?

Weten wat uw woning ongeveer waard is?
Doe nu vrijblijvend een woningcheck.

Plan uw afspraak
De brochure

Wilt u alle informatie over deze woning nog eens rustig nalezen?

Download brochure

Plattegronden

Media

Afspraak plannen

"*" indicates required fields

Consent*
Consent*

Gratis waardebepaling

"*" indicates required fields

Consent*
Consent*